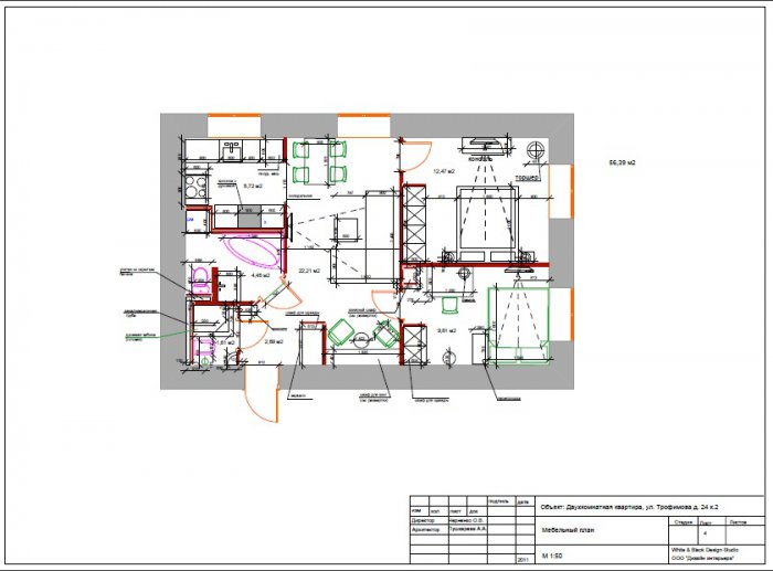
До перепланировки была 2-х комнатная квартира: 2 спальни, кухня, раздельный с/у и прихожая. После перепланировки: 2 спальни, гостиная, кухня, 2 больших с/у и прихожая. Так получилось т.к. квартира угл...
До перепланировки была 2-х комнатная квартира: 2 спальни, кухня, раздельный с/у и прихожая.
После перепланировки: 2 спальни, гостиная, кухня, 2 больших с/у и прихожая.
Так получилось т.к. квартира угловая, и 1 большую комнату поделили на 2 спальни.
Также в квартире нт несуших колонн, а только ригеля, которые удачно спрятаны за потолком и новыми стенами.


Коментариев пока нет, но вы можете быть первым!