Добрый день!На днях получили ключи от новой квартиры-монолит, 3 комнаты, 3 балкона.Хотели бы сделать из того что имеем просторную кухню-гостинную + 3 спальни, в т.ч. 2 детские.Изначально идея перенсти...
Добрый день!
На днях получили ключи от новой квартиры-монолит, 3 комнаты, 3 балкона.
Хотели бы сделать из того что имеем просторную кухню-гостинную + 3 спальни, в т.ч. 2 детские.
Изначально идея перенсти кухню в большую гостинную, а на месте кухни сделать спальню, в т.ч. с присоединением балкона, возможно с использованием раздвижных французских окон -в пол (стена между кухней и балконом из блоков, не несущая, стена между гостинной и кухней - несущая) В идеале остальные балконы в спальнях хотелось бы также утеплить и присоединить, ну и большое внимание уделяется местам для хранения вещей/гардеробным.
Помимо прочего сейчас также находимся в стадии поиска дизайнера - ранее с этим никогда не сталкивались, стиль хотелось бы современный в спокойных тонах. вот примерно что для себя определили из "хотелок":
1. Разделить помещение так, чтобы были: детская 1, детская 2, спальня, кухня-гостиная, желательно объединение всех 3х балконов с жилыми зонами.
гардеробная, два сан. Узла.
2. В детских: кровать, игровая зона, шкафчики для одежды и игрушек, стол, стулья
3. В спальне: кровать, тумбочки, комод, телевизор
4. В кухне-гостиной: кухонный гарнитур с техникой, большой диван, раскладывающийся в двуспальную кровать, телевизор, домашний кинотеатр, биокамин, большой стол со стульями, барная стойка
5. В гардеробной: полки, перекладины для вешалок, гладильная доска.
6. Сан. Узлы: в одном - ванна, туалет, большая раковина; во втором – душевая кабина, туалет, раковина. В одном из них стиральная машина
При всем при этом хотелось бы официально узаконить и согласовать данный проект (по крайней мере в части мокрых зон и т.п. - в части балконов хотелось бы придумать легкомонтируемую конструкцию в случае продажи квартиры -возможно какая то скрытая складываемая прозрачная перегородка по типу французского окна).
В общем буду очень признателен за идеи по перепланировке с учетом озвученных хотелок с учетом возможности дальнейшего согласования, помимо этого буду рад рассмотреть предложения и рекомендации по изготовлению дизайн- проекта за разумные денги.
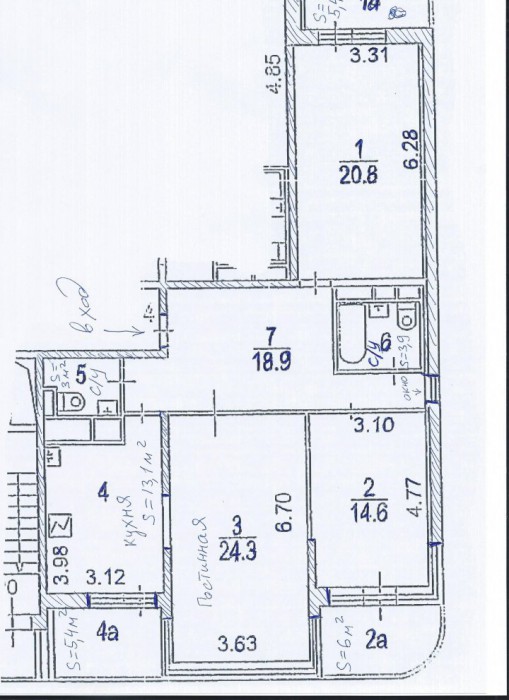
План квартиры предоставляю

Перенос кухни (поменять местами жил.комнату и кухню) чревато неподъемными согласованиями.
Если квартира в области, то еще можно договариваться.
Если в Москве — навряд ли согласуют. Смотреть будут по ситуации, но ценник космический.