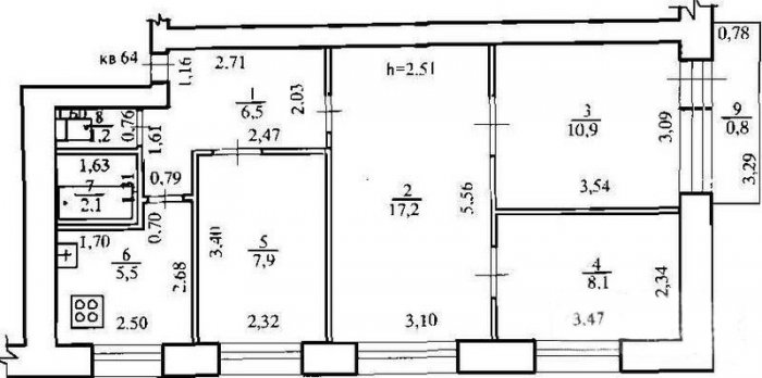
Здравствуйте) Помогите, пожалуйста, с перепланировкой квартиры. Да такая квартира была уже на сайте, но как-то варианты планировок мне не очень, может, у кого-то еще будут идеи?
Что имеем:
1.Квартира в кирпичном доме, несущие стены по периметру.
2.Газовая плита.
3.Еще есть встроенный шкаф между прихожей и большой комнатой.
Что хотелось бы в итоге получить:
Спальню, детскую (на одного ребенка 2-х лет), небольшой кабинет (возможно в будущем это будет спальня дедушки), гостиную, столовую и кухню можно объединить в одно пространство. Большой гардероб, лучше всего в прихожей.

а где можно посмотреть идей декора для такои планировки
В принципе это классическая))) хрущевка. Могу помочь только с идеями перепланоровок.