Представляем Вам одну из последних наших работ - дизайн-проект трехкомнатной квартиры, который мы назвали: "Современная легкость".
Итак, Современная легкость:
Дом располагается в новой Москве - рядом с большим лесным массивом и чудесными видами из окон. Панорамные окна дают акцент в интерьере на естественное освещение. Светлый, элегантный и функциональный интерьер сложился для семьи с двумя чудесными дочерьми.
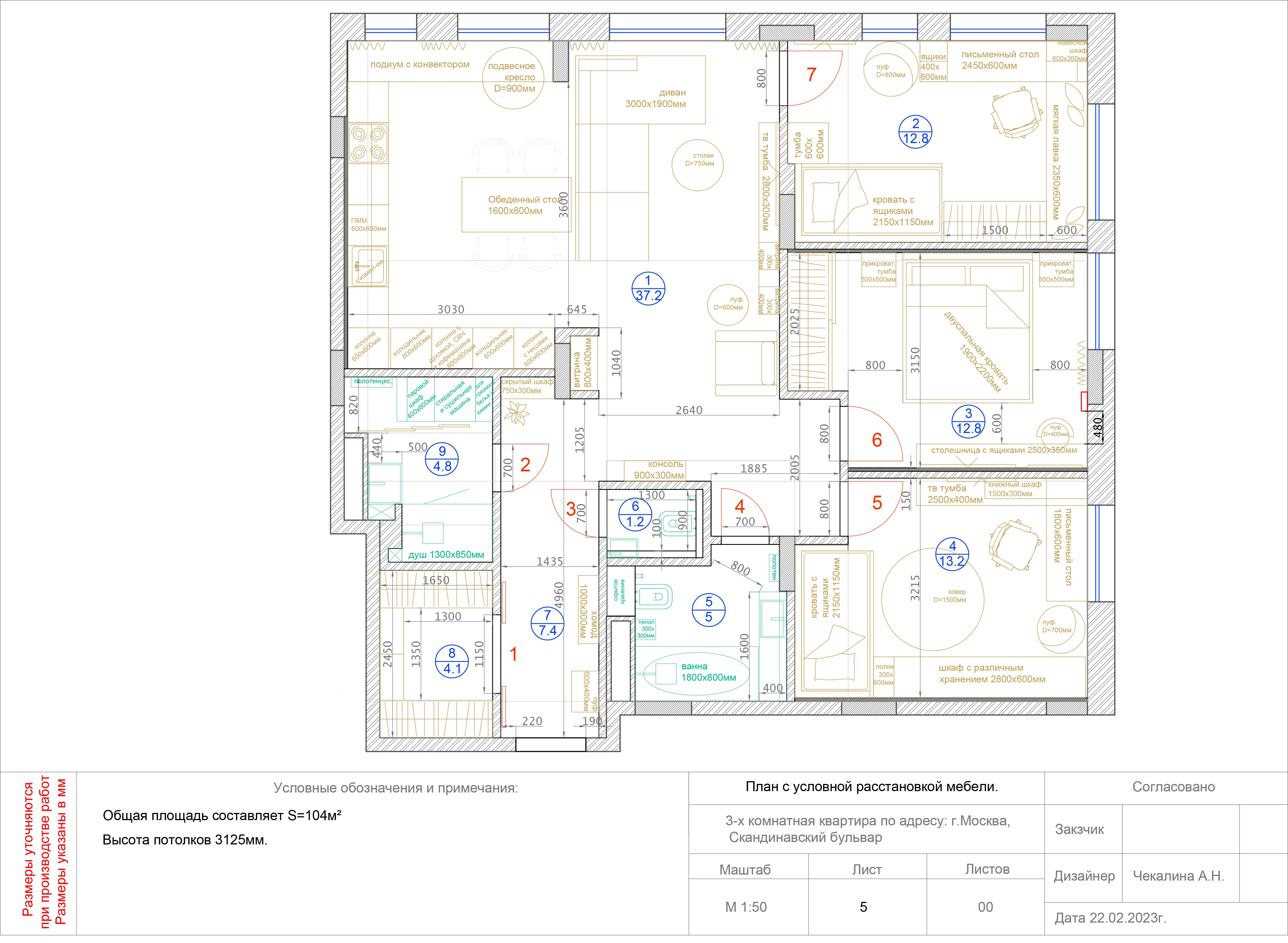
Работа над планировочным решением была грандиозная: на площади в 104 кв.м. мы расположили девять помещений. Центральное пространство кухни-гостиной занимает главенствующее положение в 40 кв.м., с удобными зонами отдыха и функциональной зоной приготовления еды. В таком большом пространстве динамичным образом расположены различные отделочные материалы так, чтобы пространство было зонировано и привлекало взгляд своей сложносочиненной отделкой. При входе в квартиру попадаешь в просторный коридор с просторной гардеробной, гостевым санузлом и многофункциональным помещением с постирочным блоком и душевой. У каждой из дочерей имеется своя комната с оригинальным дизайном, наполненная светом и продуманная до мелочей. Между двумя детскими комнатами расположилась изящная спальная комната родителей, вблизи которой находится просторная ванная комната.
Разработанная эргономика всего пространства уникальна, поскольку она выполнена именно для этой семьи - с учетом ее нужд и потребностей. Дизайнерское оформление подчеркивает планировочное решение и становится продолжением эстетического восприятия прекрасного для всех членов семьи. Правильное сочетание эргономики и дизайна создает именно тот самый комфорт и уникальность интерьера.
Атмосферная кухня:
Когда кухонная зона объединена с гостиной, особое внимание в дизайне уделяют кухонному гарнитуру. Мебель не должна смотреться громоздко и при этом должна быть продолжением гостиной. Мы решили основную часть мебели растворить в пространстве, сделав её в той же тональности, что и стены, без какого‑либо рельефа, как чистый лист. А оставшуюся часть мебели выделить акцентными реечными фасадами из массива дуба с подсветкой и в ажурном обрамлении керамической плиткой, выложенной елочкой
Единое пространство кухни гостиной:
Объединив кухню и гостиную, мы получили вдвое больше пространства и света, место, где приятно проводить время семьей и большими компаниями
Кухонные пеналы:
Я очень люблю основное кухонное хранение размещать в высоких шкафах‑пеналах, в которых можно лаконично спрятать не только технику, но и организовать ниши для еды питомцев - причем на той высоте, которая удобна четвероногому
Утонченные нюансы:
Интерьер сложился в светлых тонах с золотистыми нюансами, которые выигрышно оттеняют основную палитру. Золотистый оттенок дерева прекрасно перекликается с тонкой золотой полосой в потолочном карнизе. Ажурный рисунок на напольной плитке гармонирует с латунным металлом двух светильников над обеденным столом
Отражение света:
Зеркала - интересный прием в отделке стен. Располагая зеркало в непосредственной близости к окну, мы получаем расширение оконного пространства и увеличение потока дневного света
Воздух:
Очень важно, когда основное пространство в квартире просторное и имеет высокий уровень потолка. Интерьер, наполненный воздухом, всегда привлекательнее и комфортнее
Зона отдыха:
Мягкая, комфортная мебель в гостиной очень важна для отдыха и приятного времяпрепровождения. Нам удалось расположить большой диван с оттоманкой напротив ТВ-зоны и организовать мягкое место в центре квартиры, где можно удобно расположиться за чтением книг
ТВ-композиция:
Отделочные материалы в комбинации с мебелью должны создавать правильную геометрическую композицию, где все уравновешено. Палитра и текстуры находятся в гармонии друг с другом. Пример такого слияния можно увидеть на самой большой стене этого пространства, которая включает в себя зону ТВ
Центр пространства:
В этой квартире было важно сделать планировочное решение таким образом, чтобы центр пространства был свободным - без стен и мебели. В центре организовали точку притяжения с декором, выполнив иную отделку стен и подчеркнув композицию декоративной подсветкой
Зонирование:
Зонирование пространства необходимо для правильного восприятия пространства. Главным аспектом является назначение и функционал данной зоны. С помощью различных методов - света, отделки, цвета - можно объединить или обособить ту или иную область в пространстве в зависимости от задачи
Сложносочиненное пространство:
Я люблю сложное пространство, которое хочется рассматривать и с первого взгляда не считываешь всего замысла. При этом очень важно, чтобы пространство было в гармонии с хозяевами квартиры
Дневной свет:
Нам повезло с архитектурой дома. Вдоль одной из стен кухни-гостиной в ряд выстроились три панорамных окна, тем самым складывается ощущение отсутствия стены вовсе. Интерьер наполнен естественным освещением, которое проникает вглубь квартиры, преображая пространство и заряжая его положительной энергетикой
Композиция отделки:
Шпоновые обои от пола до потолка с подсветкой сейчас очень популярны в отделках стен. Я добавила немного динамики. Зеркало уместно и актуально расположилось напротив входа в гардеробную; подвесная тумба дополнила композицию объемным элементом, а декор завершил преображение. Эстетика и функционал на лицо
Правильная организация входной группы:
Сложно поверить, что эта квартира имеет площадь чуть больше 100 кв. м. При входе в квартиру мы попадаем в просторное и правильно спроектированное пространство. При входе - мечта любой хозяйки: отдельная П-образная гардеробная; напротив - большое зеркало и несколько стильных предметов мебели. Далее по коридору слева - скрытая дверь в постирочную комнату с полноценной душевой, а справа - также скрытая дверь в гостевой туалет. Но это еще не все: в торце коридора за реечными фасадами в цвет стен скрыт шкаф для дополнительного хранения
Световые аспекты:
Важно предусмотреть в пространстве различные сценария света даже не в основных помещениях. Прихожая - это лицо всей Вашей квартиры, поэтому необходимо организовать основной и декоративный свет. Основной свет представлен скрытым магнитным треком контрастного черного цвета, асимметрично расположенным относительно центра коридора. Декоративный свет - более теплый и подчеркивает текстуру дерева
П-образная гардеробная:
Гардеробная, спроектированная вдоль трех стен, обеспечивает максимально удобное размещение для хранения одежды и обуви. Еще один аспект комфорта при использовании гардеробной — доступ к ней: у нас установлены две сдвижные двери. Открыв их, можно увидеть все необходимое, даже не заходя внутрь
Расположение гардеробной:
Действительно, отдельное помещение, выделенное для гардеробной, да еще в непосредственной близости к входной двери, позволяет правильно организовать хранение обуви и верхней одежды, не перегружая входную группу
Гостевой санузел:
Планировочное решение позволило нам разместить гостевой туалет в непосредственной близости от входной двери. Мы уделили особое внимание выбору отделочных материалов и цветовой палитры. Сочетание цвета и рисунка создает особое впечатление
Яркая история:
Никогда не надо бояться цвета в интерьере, цвет надо просто тщательно подбирать нужного оттенка так, чтобы он вызывал у вас положительные эмоции. Да, возможно, это хлопотно, но это стоит того, поскольку этот цвет будет заряжать вас каждый раз, когда вы будете на него смотреть
Компактное хранение:
В гостевом туалете нам удалось разместить небольшую раковину для мытья рук, а также разместить под ней небольшой шкаф с удобными нишами для хранения различных средств
Визуальный прием:
В малых пространствах высота потолка несоразмерна габаритам, поэтому я стараюсь разбивать пространство по горизонтали
Скрытое хранение:
Когда не удается разместить отдельную гардеробную для вещей, приходится организовывать хранение в комнате. Шкафы обычно большие и громоздкие, поэтому, чтобы сэкономить пространство, мы спроектировали нишу для шкафа. Его замаскировали двумя реечными сдвижными полотнами и в той же стилистике отделали часть стены за изголовьем. Таким образом, хранение скрыто от глаз, а интерьер украшен изящной фактурой дерева
Уникальная отделка в изголовье кровати:
Приятный оттенок зеленого в сочетании со спокойным оттенком дерева прекрасно дополняет интерьер и встречает вошедшего своим замысловатым объемом, который выигрышно подсвечен дневным светом из окна
Атмосферное пространство спальной комнаты:
Гармония цвета и текстуры в правильной композиции создает тот самый комфорт, который необходим пространству для хорошего отдыха
Стильный туалетный столик:
При небольшом пространстве спальной комнаты важно избежать нагромождение мебелью. Нам удалось совместить в одном предмете мебели туалетный столик и ТВ-тумбу. Подвесное крепление добавило композиции легкости
Интерьерные обои:
Сегодня существует большой выбор интерьерных обоев и панно с различным дизайном, но именно это панно давно вдохновляло меня. Замысловатый рисунок изящно украшает пространство и визуально вытягивает его
Умиротворяющая палитра:
Теплая, природная цветовая гамма влияет на человека психологически: зеленый вызывает чувство спокойствия и безопасности, а желтый ассоциируется со счастьем
Текстиль в интерьере:
Текстиль играет ключевую роль в создании уюта и гармонии в интерьере, добавляя тепло, цвет и текстуру
Основная ванная комната:
Основная ванная комната предназначена для общего пользования всеми членами семьи. При этом в квартире есть также гостевой санузел и постирочная комната с душевой
Осенняя палитра:
Мягкая и умиротворяющая палитра с осенними нотками прекрасна подошла к нашей просторной ванной комнате. Акцентный цвет представлен в предметах мебели и дополнен золотыми элементами в декоре
Акцентный уголок:
При входе в ванную комнату можно увидеть два изящных световых подвеса, которые подсвечивают необычный керамогранит с декором. В декоре используется специальная золотая краска, которая прекрасно играет в лучах света. Ниже на широкой столешнице красиво расположен декор и любимые косметические средства
Различные места хранения:
Мы организовали несколько мест хранений: за зеркалом, в пенале и в ящиках под раковиной. Дополнительным хранением для самого необходимого служит широкая столешница, которая расположена в торце ванной чаши
Изменения в процессе ремонта:
В процессе ремонта мы решили отказаться от верхнего душа - благо душевая у нас есть в постирочной комнате. Ванная чаша у нас 1800х800мм и решено было заказать двухместную, поэтому в ее центре мы разместили излив и душевую лейку - непосредственно на акцентной полоске из мозаики
Эстетичное хранение:
Мы старались избежать громоздких шкафов и разместили подвесной пенал с открытой нишей для декора. Узкий и высокий пенал хорошо сочетается с декором из мозаики. Цвет пенала, словно лучик солнца, дополняет теплую палитру керамогранита
Планировочное решение ванной комнаты:
Планировочное решение ванной комнаты позволило нам расположить просторную ванную чашу в размере 1800х800мм. Интересным образом обыграть умывальную зону, исполнив в строительном исполнении широкую столешницу с накладной раковиной. В углу комнаты расположили унитаз и гигиенический душ. Высокий полотенцесушитель нашел свое место при входе. Благодаря продуманному размещению всего необходимого, комната осталась просторной и комфортной
Царство сновидений:
Хороший сон необходим для правильного развития ребенка. Важно правильно подобрать ортопедический матрас. С двух сторон предусмотрено мягкое изголовье. Нам удалось спланировать спальное место в размере 1000х2000мм
Свободное пространство:
Чтобы создать просторное пространство, я большое внимание уделяю потолкам, стараюсь сильно их не опускать. Добавляю скрытую подсветку, что визуально делает потолок парящим. Мебельный конструктив размещаю до потолка. В итоге пространство кажется выше и просторнее, чем есть на самом деле
Три окна в детской комнате - хорошо или плохо?:
Мы живем в средней полосе, где количество солнечных дней ограничено. Окна в комнате юной девушки выходят на две стороны света. Дневной свет благоприятно влияет на психическое и физиологическое развитие ребенка
Письменный стол у окна:
В планировочном решении единственная стена без окон и дверей была отдана размещению шкафа и кровати. Письменный стол решено было расположить возле окна. Стол был тщательно продуман: вся канцелярия находится на своих местах в ящиках, а книги убраны в навесные пеналы над столом
Скамья возле окна:
Продолжением письменного стола является мягкая скамья возле окна, которая с одного края заходит под его столешницу. В скамье организовано дополнительное хранение
Обои в интерьере:
Я люблю применять разную отделку стен, дабы выделить или скрыть нужную для меня плоскость. Скрытые двери позволяют продолжить отделку стен на дверном полотне. Данные обои являются примером того, как то, что мы видим из окна, проникает в пространство
Палитра детской комнаты:
Палитра этой комнаты интересная: имеет два акцентных цвета - зеленый и коралловый. Фоновыми цветами являются земельные оттенки - от черного до светло-бежевого
Текстиль в интерьере:
В данном интерьере текстиль несёт важную роль. Ок демонстрирует два акцентных цвета в палитре комнаты. Спальное место полностью отделано текстилем для достижения максимального тактильного и визуального эффекта
Рисунок на стенах в детской комнате:
Этот забавный рисунок был подобран специально для маленькой хозяйки этой чудесной комнаты. Он органично вписан в интерьер и расположен на двух стенах, образуя совместно с мебелью оригинальную, живую композицию. Фоном рисунка выступил теплый оттенок белого. В нем присутствует теплый оранжевый цвет, который напрямую перекликается с интерьером комнаты
Письменный стол возле окна:
Письменный стол мы расположили вдоль панорамного окна с чудесным видом на лес. Легкая конструкция стола прекрасно вписалась в интерьер
Места хранения в детской комнате:
Прикроватный стеллаж:
С торца большого платяного шкафа, в непосредственной близости к кровати, было решено оставить открытыми несколько полок для того, чтобы самые дорогие игрушки “охраняли” сон маленькой принцессы
Планировочное решение детской комнаты:
В планировочном решении нам удалось решить многие задачи. Спальное место разместили в нише, создав камерное ощущение. Письменный стол возле окна с естественным освещением в дневное время. Вдоль самой длинной стены расположился большой вместительный шкаф, а напротив него - зоны развлечений: подвижных игр и просмотра ТВ
Стильный дизайн:
Игра цвета и фактур прекрасно оживляет и делает пространство интересным для изучения. Динамичный рисунок украшает интерьер и привносит в него уникальную историю
Сливочная палитра:
Приятная сливочная палитра обволакивает пространство и мягко погружает в уникальный интерьер веселой и смышленой юной хозяйки
Многофункциональный шкаф:
Этот большой шкаф был продуман таким образом, чтобы все вещи маленькой хозяйки имели свое место хранения
Ниша для спального места:
Планировочное решение позволило нам разместить спальное место в нише и оформить с трех сторон высокое мягкое изголовье, которое увенчано парящим потолком
Пространство для игр:
Акцентная зона раковины:
Акцентным предметом мебели в постирочной стала умывальная зона, при этом ее функционал был тщательно продуман. Цвет корпуса синего оттенка подобран на контрасте с основной теплой палитрой пространства. Эти цвета являются дополнительными на цветовом круге, поэтому их сочетание дает яркий контрастный эффект
Просторная душевая:
Просторную душевую удалось разместить в постирочной комнате. Подиум выполнили в строительном исполнении с трапом, уложив мозаику для более безопасного использования. Также организовали стеклянную перегородку с распашной дверцей
Функциональный аспект:
При входе в это помещение мы видим функциональную зону раковины в акцептном серо-синем оттенке. Тумба с зеркалом продумана с удобным хранением и возможностью зарядки робота пылесоса
Лаконичный отделочный материал:
Хозяйственный шкаф:
Каждая хозяйка мечтает иметь отдельное, специально оборудованное помещение для стирки, сушки и глажки белья, а также хранения всей необходимой бытовой химии и принадлежностей. Нам удалось в планировочном решении расположить шкаф со всем необходимым в близости с раковиной и душевой
Сдвижная перегородка:
В гостевом санузле мы спланировали нишу, где разместили хозяйственный шкаф с постирочной колонной и предусмотрели сдвижную перегородку, благодаря которой мы можем скрыть хранение от посторонних глаз
Покраска в санузле:
Я часто использую краску в санузлах. Там, где нет прямого попадания воды, достаточно использовать краску для мокрых зон
Планировочное решение постирочной комнаты:
При входе в квартиру нам удалось расположить хозяйственное помещение, где расположили просторную душевую, большую раковину для хозяйственных нужд и постирочный блок
План после перепланировки:






























































👍
Плохая планировка, плохая эргономика.
Интерьеры - набор избитых штампов.