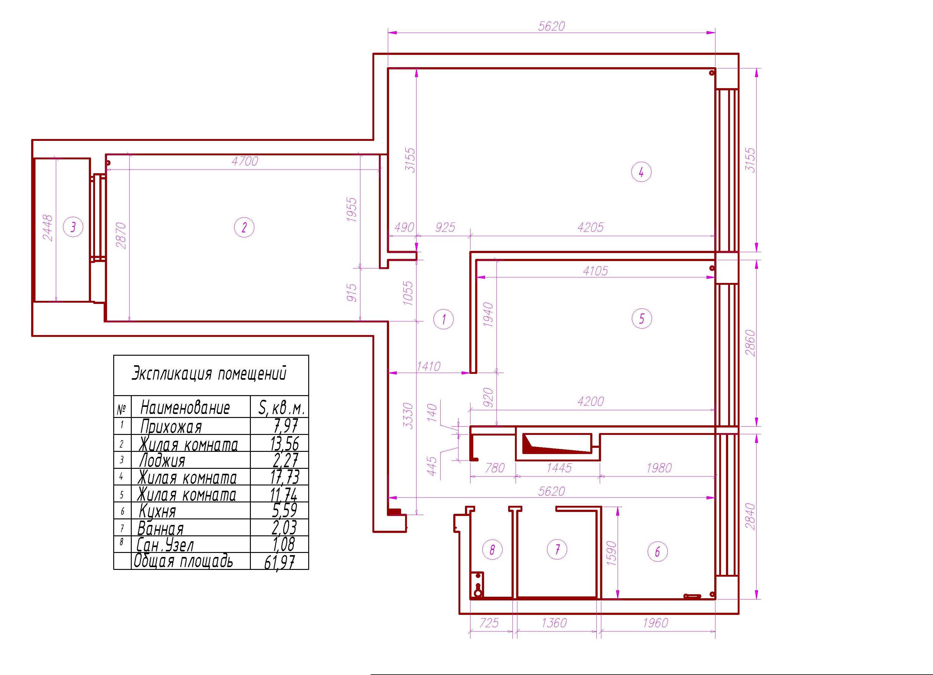
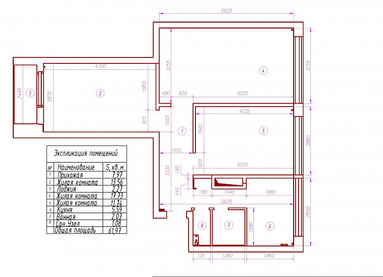
Пожеланием от заказчика было создать проект в доме типа Корабль с новой, более удобной для жизни планировкой. Стиль квартиры был определён, как современный. Проект перепланировки согласован.
В результате работы планировка имеет следущие изменения: С/у объеденён и увеличен за счет коридора, ведущего на кухню. Выделено место под небольшой, встроенный шкаф в прихожей. Вход на кухню перенесен их коридора в гостиную и за счёт этого изменения кухня стала более функциональной. Запланирована гардеробная в одной из комнат.














За перенос входа большой плюсище (только очень интересно, как удалось согласовать)
А вот санузел лучше бы раздельным сделали. В квартире минимум три человека живет судя по спальням.
Проходная прихожая - земля по квартире, коридоры... Плохая планировка.
Я так понимаю, Вы просто хотите подискутировать, но к сожалению, я не готова составить Вам компанию. И да, я не зря написала в заголовке "Перепланировка трёхкомнатной квартиры в доме типа "Корабль". Любой архитектор или дизайнер знает, что в домах этого типа все стены являются несущими. Спойлер: это ответ на ваш комментарий "Плохая планировка".
Очень прикольно продлили шкафчик в спальне подвесной тумбой (я про полосу на фасадах). По крайней мере на визуализации, интересно, удастся ли воплотить на практике.
Добрый день. Очень понравился дизайн. Планирую ремонт в однотипной квартире, как с вами связаться?
Спасибо.
Очень понравился конечный результат. Планируем к покупке похожую квартиру, не знала, как обыграть вентиляцию. Идеальное решение. Спасибо.