Добрый день! Оцените планировку, как мы придумали разместить нашу семью на 70квадратах так, чтобы у каждого была своя комната. Подскажите, что можно изменить, улучшить?
Да, конечно, понимаю ваше мнение. Вот плат от БТИ. Важно для нас при перепланировке - сохранить мокрые зоны, изолированные две детские, изолированная спальня родителей, рабочий стол для компьютера, два туалета, ванная, а не душ, небольшой гостевой диван, раскладывающийся в спальное место, место для кота - скрыть его туалет, разместить лазилки - когтеточки.
Мдя, и то верно - пеперпланировка. На месте ребёнка - обладателя комнаты с тремя окнами ты, очевидно, представил себя? В туалето от двери до унитаза марафонская дистанция. Выход в гостиную аж из двух сортиров - вообще огонь! Родителей рабочего места лишил, как и семью - обеденного стола. Пожалуй, возьму картинку, пусть студенты посмотрят, как не нужно делать перепланировки, повеселятся.
Яна, доброго времени суток! Помню вашу квартиру, предложенный вами вариант считаю неудачным. Для 70 м2 на 4-х+кот слишком перегружено получилось, много ошибок. При детских в 10-12 м2 ширина кроватей велика, мне кажется, можно обойтись метровой шириной. Шведские стенки в небезопасном месте - рядом с окном, рабочим столом и ТВ. Расстояния между предметами крайне малы, травмоопасно, пользование шкафами затруднительно, не совсем понятна кофемашина в «зоне макияжа». Рассмотрите разные сценарии, пути передвижения по квартире, так как сейчас - очень неудобно: транзит в основной санузел через грязную зону прихожей, детские выходят в кухню-гостиную, т.е. режим взрослых должен совпадать с режимом детей. Элементарная ситуация: вы принимаете ванну, муж - спит, дочь/ сын захотели в туалет, в какой пойдут? Прежде всего я бы пыталась отделить / доп. шумоизолировать детские от общественной зоны. В данном варианте аналогично вашему - проходная кухня-гостиная, но у детей свой отдельный дальний «угол», рядом с с/у и выходом в мини-коридор + доп.раздвижная дверь в кухню, как мне кажется, улучшит качество жизни всех членов семьи, шум от включенного ТВ, звенящих кастрюль)) не будет отвлекать от чтения книг, выполнения уроков, мешать сну детей. Спальня адекватных размеров ~13м2, светлая, с удобными подходами к кровати, шкафу, туалетный столик + пуф вместо прикроватной тумбы. Кухня-гостиная (+ прихожая) светлая, полностью (а не частично) освещена естественным светом, зона гостиной позволяет проводить время всей семьей, принять гостей, обеденный стол d100.
Проходная прихожая - земля по всей квартире; в санузле можно шею свернуть; разорванный кухонный ряд; пролезть в детские и санузел невозможно; спальня и детские - каморки, в которых невозможно жить... Очередная безграмотная ахинея.
Критикуешь - предлагай своё. Где "проходная прихожая"? Как в санузле площадью 2,5 или 4 квадратных метра "можно шею свернуть"?(у меня ванная 2,1и туалет 1,4, и ничего, шея в порядке) "Пролезть в детские и санузел невозможно" - тебе мало более чем метрового проёма? 10-12 квадратных метра - вполне нормальные стандартные комнаты. А, исходя из всех твоих претензий, можно заключить, что ты просто жирный, всё тебе малО, везде тебе тесно. Так жрать меньше надо, спортом заняться, а не г-но своё в чате извергать
Дарья, здравствуйте! Нам понравилась ваша планировка! Мы немного под себя изменили спальню родительскую, там разместили рабочий стол у окна. Можете, пожалуйста, в своей программе начертить эту планировку с учетом наших изменений? Размеры стен не изменились, также как на вашем чертеже.
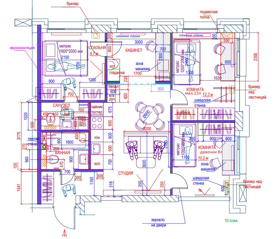
Яна, доброго времени суток! Посмотрела ваши варианты. Начертить под ваш запрос не проблема, но прежде, хотелось бы ряд уточнений - предложений: 1. В шкафу с/у лоток для кота, сверху над лотком закрытые полки. Предложение: все правильно - секцию со стиральной/сушильной машинами разместить в дальний угол, т.е. ближе к коммуникациям, вместо секции «с котом» организовать хоз. секцию для: швабры, ведра, гладильной доски, с полками под быт.химию... (ну не место перечисленному в гостиной, к тому же в шкафу, который перекрывает вид от входа в помещение). А лоток кота (кстати, какая порода? У меня крупный вислоухий шотландец, в предлагаемое вами отверстие в стене точно не пойдет, это ниже его достоинства :)) можно разместить под раковиной в малом или большом санузле на выбор, но логичнее в большом, там места больше. Примеры вставила в план. И еще, необходимо сдвинуть обеденный стол к стене, иначе неудобно пользоваться кухонной техникой, + это основной транзит из кухни в зону гостиной и спальню, каждый раз будете запинаться о стулья. Расстояние от кух.шкафов до стола д. б. не менее 1400-1500. 2. Кровати (в т.ч. текстильные) при размерах матраца 1000* 2000 д.б. ~ 1100*2100, соответственно, двуспальная при 1600*2000 не менее = 1700*2100. 3. Рабочий стол в спальне планируется как компьютерный? Ширины 500 при длине >2700 = ширине стены - недостаточно? Почему его в гостиной нельзя оставить? 4. Кухня: шкаф с мойкой и мусорным ведром =600, пмм=600, шкаф с варочной и выдвижными ящиками под хранение столовых приборов, кастрюль, сковород, сыпучих и пр. на 900 или 600+300. Навесные шкафы на всю длину стены 2100*320. Три пенала по 600: холодильник; дух.шкаф + свч; морозильная камера + кофемашина. Эскиз - развертка ниже. 5. Почему стеклянная перегородка? Предполагалась раздвижная дверь, при закрывании служит доп. шумоизоляцией, прежде всего детских. Вы же м\у спальней и детской мальчика неслучайно нарисовали утолщенную перегородку, как понимаю, она с доп. звукоизоляцией? 6. Зона гостиной для 2-х человек? 7. Из чего (материал) планируете ставить стены? В целом, если не планируете воспользоваться услугами дизайнера, рекомендую ознакомиться с правилами = нормами эргономичной расстановки мебели, у вас как миним. не соблюден баланс пропорций, очень малые расстояния м/у мебелью. Например, детская девочки: ширина комнаты 3250 - 1000(кровать) - 600 (стол) - 600 (шкаф)=1050 / 2 =525 на проходы, игровая зона отсутствует. Мое предложение такое. Размеры с учетом отделки.
Эскиз-развертка стен кухни-гостиной. П.С.: чтобы сохранить в хорошем качестве, нажмите на картинку, она увеличится, в нижнем левом углу будут три точки, нажимайте на "сохранить изображение как", получите качество с оригинальным разрешением.
Дарья, спасибо огромное! Как хорошо вы придумали с организацией пространства, доходчиво обосновали, я со всем полностью согласна! Проект у вас получился отличный!!! Спасибо за отзывчивость! У нас кот породы Бурма, он хоть и немного поменьше шотландца, но тоже думаю вряд ли захочет проходить сквозь стену))) Поставим лоток как вы предложили в ванной под раковиной, там дверь будет приоткрыта для проветривания и у кота не будет препятствия. На счет рабочего стола в спальне - я работаю почти все время удаленно в ИТ, у меня на столе не просто стильный небольшой ноут, а большой монитор, два ноута, клавиатура, мышка, МФУ, блокноты, провода и тд То есть полноценный рабочий стол. Решила, что в гостиной будет смотреться это захламлено. Также хочется при работе приватности, поэтому комфортнее работать в закрытой комнате. Хотела еще уточнить - что вы предполагаете в детской девочки в углу шкафа? Это макияжный столик с зеркалом? И еще уточните, пожалуйста, в ванной за душем - это ниша в стене для шампуней? Дарья, вы из Москвы? Хотели бы с вами продолжить дизайн проект, давайте обменяемся контактами.
Рада помочь! Кот - красавец! Да, для вашей работы дома желателен отдельный кабинет с большим столом. Подоконники низкие? Нельзя их задействовать, создав единую поверхность со столом?
Да, это туалетный столик, т.к. расстояние от кровати до шкафа небольшое = +/-450, то оптимальным решением будет напротив кровати разместить либо секцию с полками (книги, игрушки...) без дверей, либо туалетный столик, возможно, с меньшей глубиной ~400. В ванной в нише по полу под уклоном заводятся трубы канализации + трубы гвс/хвс, сверху (над ванной) ниша либо полностью зашивается вгкл, либо частично с возможностью организовать полки под шампуни, в этом случае верхнюю лейку душа нужно выводить на стену 1700. Нет, но в РФ)). Продолжить получится только в удаленном формате.
П.С.: Варианты столешницы увеличенной глубины при панорамных окнах, важна высота расположения импоста (верхний/ нижний) и возможность беспроблемно помыть окно.
Выложите план застройщика (БТИ).
Ваша планировка не выдерживает никакой критики, с точки зрения организации пространства и эргономики.
Да, конечно, понимаю ваше мнение. Вот плат от БТИ. Важно для нас при перепланировке - сохранить мокрые зоны, изолированные две детские, изолированная спальня родителей, рабочий стол для компьютера, два туалета, ванная, а не душ, небольшой гостевой диван, раскладывающийся в спальное место, место для кота - скрыть его туалет, разместить лазилки - когтеточки.
3.47 - это размер до выступа или это ширина комнаты?
Не ведитесь на "планировки" аферисток-клепальщиц.
На месте ребёнка - обладателя комнаты с тремя окнами ты, очевидно, представил себя?
В туалето от двери до унитаза марафонская дистанция.
Выход в гостиную аж из двух сортиров - вообще огонь!
Родителей рабочего места лишил, как и семью - обеденного стола.
Пожалуй, возьму картинку, пусть студенты посмотрят, как не нужно делать перепланировки, повеселятся.
Да, прикладываю фото границ кухни.
Яна, доброго времени суток!
Помню вашу квартиру, предложенный вами вариант считаю неудачным. Для 70 м2 на 4-х+кот слишком перегружено получилось, много ошибок. При детских в 10-12 м2 ширина кроватей велика, мне кажется, можно обойтись метровой шириной. Шведские стенки в небезопасном месте - рядом с окном, рабочим столом и ТВ. Расстояния между предметами крайне малы, травмоопасно, пользование шкафами затруднительно, не совсем понятна кофемашина в «зоне макияжа». Рассмотрите разные сценарии, пути передвижения по квартире, так как сейчас - очень неудобно: транзит в основной санузел через грязную зону прихожей, детские выходят в кухню-гостиную, т.е. режим взрослых должен совпадать с режимом детей. Элементарная ситуация: вы принимаете ванну, муж - спит, дочь/ сын захотели в туалет, в какой пойдут?
Прежде всего я бы пыталась отделить / доп. шумоизолировать детские от общественной зоны. В данном варианте аналогично вашему - проходная кухня-гостиная, но у детей свой отдельный дальний «угол», рядом с с/у и выходом в мини-коридор + доп.раздвижная дверь в кухню, как мне кажется, улучшит качество жизни всех членов семьи, шум от включенного ТВ, звенящих кастрюль)) не будет отвлекать от чтения книг, выполнения уроков, мешать сну детей. Спальня адекватных размеров ~13м2, светлая, с удобными подходами к кровати, шкафу, туалетный столик + пуф вместо прикроватной тумбы. Кухня-гостиная (+ прихожая) светлая, полностью (а не частично) освещена естественным светом, зона гостиной позволяет проводить время всей семьей, принять гостей, обеденный стол d100.
Очередная безграмотная ахинея.
Где "проходная прихожая"?
Как в санузле площадью 2,5 или 4 квадратных метра "можно шею свернуть"?(у меня ванная 2,1и туалет 1,4, и ничего, шея в порядке)
"Пролезть в детские и санузел невозможно" - тебе мало более чем метрового проёма?
10-12 квадратных метра - вполне нормальные стандартные комнаты.
А, исходя из всех твоих претензий, можно заключить, что ты просто жирный, всё тебе малО, везде тебе тесно. Так жрать меньше надо, спортом заняться, а не г-но своё в чате извергать
И с пунктуацией у тебя беда, впрочем, не зря же говорят - "как курица лапой".
Размеры полученных помещений.
П.с: могу добавить размеры мебели и расстояния, если в этом будет необходимость.
...
Спасибо большое!!! Всё учтем, обдумаем.
Дарья, вот еще такой вариант планировки придумали на основании вашего решения. Посмотрите, пожалуйста.
1. В шкафу с/у лоток для кота, сверху над лотком закрытые полки. Предложение: все правильно - секцию со стиральной/сушильной машинами разместить в дальний угол, т.е. ближе к коммуникациям, вместо секции «с котом» организовать хоз. секцию для: швабры, ведра, гладильной доски, с полками под быт.химию... (ну не место перечисленному в гостиной, к тому же в шкафу, который перекрывает вид от входа в помещение). А лоток кота (кстати, какая порода? У меня крупный вислоухий шотландец, в предлагаемое вами отверстие в стене точно не пойдет, это ниже его достоинства :)) можно разместить под раковиной в малом или большом санузле на выбор, но логичнее в большом, там места больше. Примеры вставила в план. И еще, необходимо сдвинуть обеденный стол к стене, иначе неудобно пользоваться кухонной техникой, + это основной транзит из кухни в зону гостиной и спальню, каждый раз будете запинаться о стулья. Расстояние от кух.шкафов до стола д. б. не менее 1400-1500.
2. Кровати (в т.ч. текстильные) при размерах матраца 1000* 2000 д.б. ~ 1100*2100, соответственно, двуспальная при 1600*2000 не менее = 1700*2100.
3. Рабочий стол в спальне планируется как компьютерный? Ширины 500 при длине >2700 = ширине стены - недостаточно? Почему его в гостиной нельзя оставить?
4. Кухня: шкаф с мойкой и мусорным ведром =600, пмм=600, шкаф с варочной и выдвижными ящиками под хранение столовых приборов, кастрюль, сковород, сыпучих и пр. на 900 или 600+300. Навесные шкафы на всю длину стены 2100*320. Три пенала по 600: холодильник; дух.шкаф + свч; морозильная камера + кофемашина. Эскиз - развертка ниже.
5. Почему стеклянная перегородка? Предполагалась раздвижная дверь, при закрывании служит доп. шумоизоляцией, прежде всего детских. Вы же м\у спальней и детской мальчика неслучайно нарисовали утолщенную перегородку, как понимаю, она с доп. звукоизоляцией?
6. Зона гостиной для 2-х человек?
7. Из чего (материал) планируете ставить стены?
В целом, если не планируете воспользоваться услугами дизайнера, рекомендую ознакомиться с правилами = нормами эргономичной расстановки мебели, у вас как миним. не соблюден баланс пропорций, очень малые расстояния м/у мебелью. Например, детская девочки: ширина комнаты 3250 - 1000(кровать) - 600 (стол) - 600 (шкаф)=1050 / 2 =525 на проходы, игровая зона отсутствует.
Мое предложение такое. Размеры с учетом отделки.
П.С.: чтобы сохранить в хорошем качестве, нажмите на картинку, она увеличится, в нижнем левом углу будут три точки, нажимайте на "сохранить изображение как", получите качество с оригинальным разрешением.
У нас кот породы Бурма, он хоть и немного поменьше шотландца, но тоже думаю вряд ли захочет проходить сквозь стену))) Поставим лоток как вы предложили в ванной под раковиной, там дверь будет приоткрыта для проветривания и у кота не будет препятствия.
На счет рабочего стола в спальне - я работаю почти все время удаленно в ИТ, у меня на столе не просто стильный небольшой ноут, а большой монитор, два ноута, клавиатура, мышка, МФУ, блокноты, провода и тд То есть полноценный рабочий стол. Решила, что в гостиной будет смотреться это захламлено. Также хочется при работе приватности, поэтому комфортнее работать в закрытой комнате. Хотела еще уточнить - что вы предполагаете в детской девочки в углу шкафа? Это макияжный столик с зеркалом? И еще уточните, пожалуйста, в ванной за душем - это ниша в стене для шампуней?
Дарья, вы из Москвы? Хотели бы с вами продолжить дизайн проект, давайте обменяемся контактами.
Кот - красавец!
Да, для вашей работы дома желателен отдельный кабинет с большим столом. Подоконники низкие? Нельзя их задействовать, создав единую поверхность со столом?
В ванной в нише по полу под уклоном заводятся трубы канализации + трубы гвс/хвс, сверху (над ванной) ниша либо полностью зашивается вгкл, либо частично с возможностью организовать полки под шампуни, в этом случае верхнюю лейку душа нужно выводить на стену 1700.
Нет, но в РФ)). Продолжить получится только в удаленном формате.
а Дарья - умница!
P.S. огнетушитель для пукана прислать?)
Б.