*
*







Гость
Пользователь

Моя страница

Уведомления

Сообщения

Публикации

Обсуждения

Заказы

Избранное

Настройки

Выход

Помогите с грамотной планировкой


6 Января 2026 в 23:55
*

101 1196 *

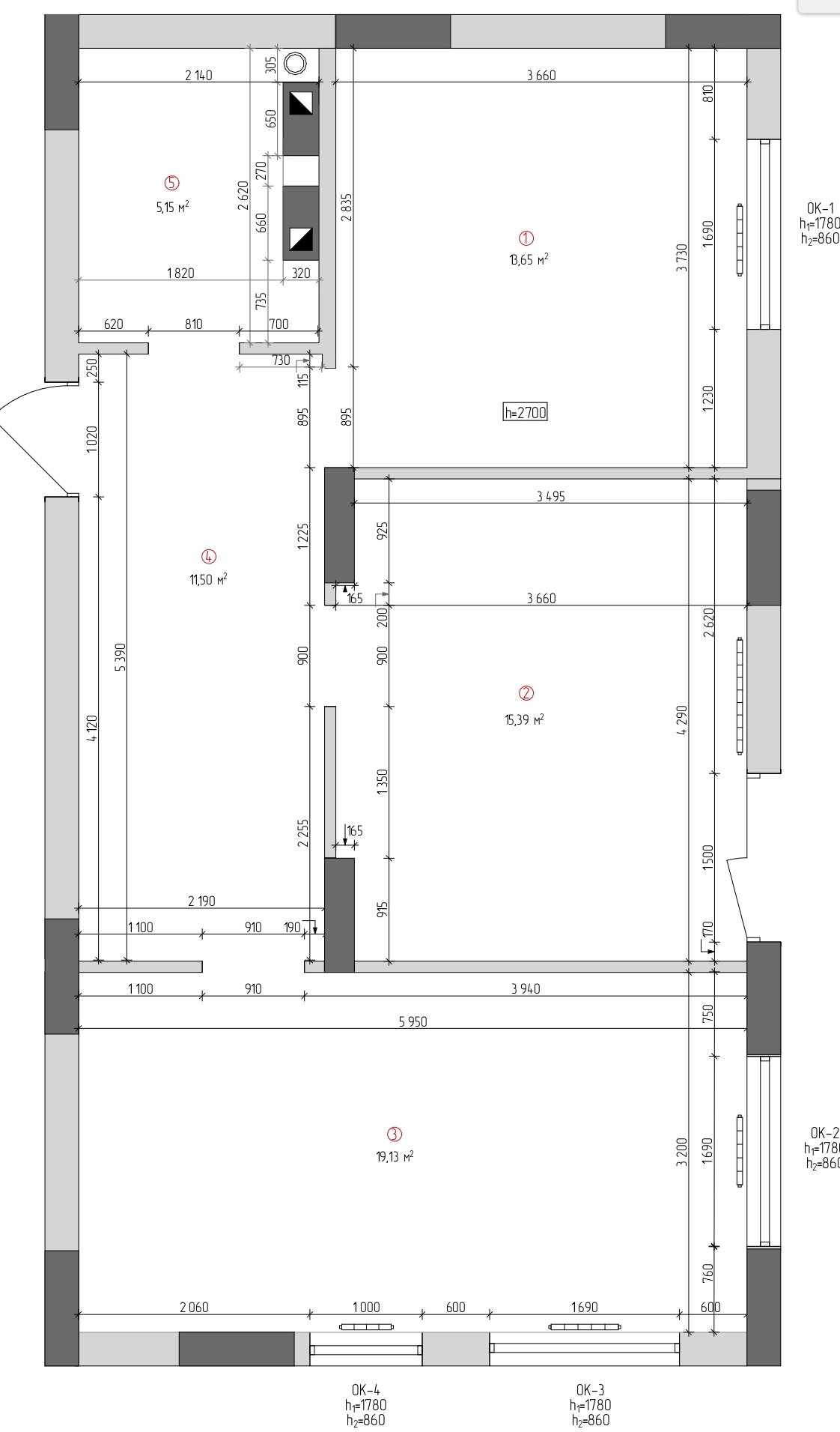
Добрый день. Нужен совет дизайнера 
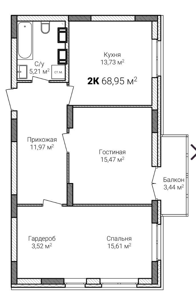
Квартира 2 комнаты в новостройке, с балконом. Площадь около 65м, если без балкона считать.Приложен:
1) план, где показан балкон,
2) план с реальными размерами 
3) вариант придуманной нами перепланировки

Задача у нас такая: иметь кухню гостиную, желательно большую, спальню с кроватью шириной не менее 160 см, отдельную детскую, которая должна при желании вместить 2х детей (пока у нас 1 ребенок). Важно, чтобы площадь спальни в теории могла вместить детскую кроватку для новорожденного

Прошу оценить или сказать где мы просчитались. Нас смущает то, что в детской одно окно, может быть темно, а в спальне наоборот 2 окна. Также смущает, что мы из 1 большого коридора делаем 2 маленьких. Ломаем голову. 

Ответы (101)

Наилучшая перепланировка.
Полный функционал, организация, эргономика.
Дизайн-проект обязателен.


Заморочиться и перенести зону готовки в коридор к стене 4120, объединив ее с комнатой с балконом - *иметь кухню гостиную, желательно большую*. И две комнаты-спальни.


1. Что скажите про вариант, который мы сделали?
2. Зону готовки перенести в коридор и сделать в зоне кухни комнату - нельзя, в коридоре нет сливного отверстия к сожелению))


1. Не занимайтесь самодеятельностью - угробите
квартиру.
2. Размещение под кухней жилого помещения
запрещено, такую перепланировку не согласуют.


Коммуникация несложно провести под ступенькой возле входной двери. Вопрос решаемый.

Я так понимаю в нашем варианте без насоса принудительного кухню в коридор не перенести?

На этот вопрос может ответить только сантехник на месте, все зависит от того где на какой высоте находится вход канализации в основной стояк - вполне возможно, что обойтись без принудительного насоса очень даже возможно, расстояние там невелико. Надо смотреть на месте.

А где у вас расположен канализационный стояк?

Слив в самом углу с/у расположен,, отверстие внизу поэтому у меня лишь один вариант в голову пришел, если без насоса, положил, так мы можем пустить слив самотеком в теории не поднимая пол

Можете сами рассчитать - необходимый уклон для корректной работы слива составляет три сантиметра на метр.

Только кухню-то предпочтительнее по стене со входной дверью, а не на проходе в гостиную, как вы расположили.

Я согласен, что так неправильно и не очень красиво, этот вариант я делал в случае если делать естественный слив, т.е. мойка сделана так чтобы можно было трубу пустить, а остальная часть кухни по стене у двери

Если делать принудительный слив с насосом, то конечно по стене от входа уже все можно сделать

Расстояние до стены со входной дверью никак не длиннее расстояния до конца несущей колонны, возможно даже меньше, особенно, если идти по прямой ...

Если делать самотеком по прямой, то там расстояние будет 5,5 метров минимум, т.е. нужно будет пол поднять на 15-20 см +/-)

Поэтому и предполагается ступень возле входной двери. Все просто. И без насоса.

В этом случае ступенька должна быть довольно высокая, учитывая, что под входной дверью в стяжке проходит отопление)) это видимо не очень удобно
А насос насколько надежная тема? стоит его вообще ставить или лучше поискать другие варианты?

Насос, как и любая техника, может быть качественным и надежным, или наоборот, неудачным, как и любая техника требует ухода, и, как и любая техника, может ломаться. Решайте сами, как говорится - сравнивайте риски с выгодой...

Длина трассы от стояка до ближайшего = возможного места расположения мойки (учитывая глубину шкафа в прихожей + простенка = 0,7м):
~5,2м по диагонали - т.е. в стяжке, разница высот между верхним и нижним концом участка трубы составит 15,6см,
~6,5м вдоль стен (что оптимально для ревизии трубы, возможного устранения засора) - 19,5см.
Учитывая высоту входа в крестовину стояка, кот., скорее всего, выше уровня чернового пола + диаметр трубы = 4см, несложно посчитать, что высота стяжки в лучшем случае будет 20 см, в противном все 25см. Это не одна ступень, и как вы себе это представляете - неэстетично, неудобно, каждый раз запинаться, входя в узкое пространство прихожей. Аналогично с подиумом. Заливать бетоном периметр = уменьшать высоту потолка на 20-25см - безумство + приличная нагрузка на плиту перекрытия, про финансовую сторону вопроса умолчу, да и как показывает практика, через год-два эксплуатации кухни начнутся проблемы с забитым на полдлины лежаком.
В общем, в данном случае (достаточно длинная трасса с поворотом, проемы на пути ее пролегания усугубляют ситуацию) - 100% нужен насос. По работе - есть ограничения по температурному режиму, исправно профилактика раз в полгода/год - по ситуации, кипяток, масло, жир, твердые отходы , логично, лучше не сливать, рекомендую доп. установку измельчителя, шумит не громко, привыкаешь быстро, не раздражает.

Автор пишет, что там трубы отопления в полу, что значит везде... Так что, забыть об этом варианте -- не в этих условиях.

Мои умозаключения/ предположения, в отсутствии информации, не видя полной картины, сомнений много..., колхозить ненавижу)). Наверняка есть схема прокладки / захода в квартиру трубы отопления, правильнее, она должна быть на разные форс мажорные случаи. Часто застройщик не делает стяжку, сдает с кинутыми трубами, а стяжку делает сам собственник, в таком виде можно перекинуть - поменять местоположения радиатора. Но суть не в этом. Разговор же про принудительную канализацию и возможные пути пролегания трассы, соответственно, без уклона и поверх имеющейся стяжки.

Отопление заходит прямо под входной дверью, приложил план. Стяжка в квартире есть

А какие минусы видите?


Гипертрофированная гостиная, в спальне и детской невозможно жить.
Минимально допустимые площади: спальня - 10м2, детская для двоих - 16 м2.

*...Нас смущает то, что в детской одно окно, может быть темно, а в спальне наоборот 2 окна...* - вполне логично поменять назначение комнат - для детской нужно много света, для шкафа с личными вещами там тоже есть место /чего нет для спальни/, а вот для спальни нужно лишь проветривание и одного окна достаточно, рядом гардеробная, и к тому же, как раз в этой комнате и есть место для детской кроватки...


Поменяв назначение у ребенка будет комната 8,7 кв м)) если детей будет 2-е, то площади совсем маловато


Это не секрет, что площадь не всегда главное, главное возможности этой площади. В детской 8,7 есть возможности и для мест хранения, и для рабочего места у окна, и светлое место для игр/хобби/второе рабочее место. И, если по поводу детской еще могут быть сомнения какая из комнат больше подходит, то по поводу спальни в 8,7 ... одна печалька. Для вещей максимум комод для белья возможно вместить, за остальной одеждой через гостиную в гардеробную бегать, да там не то что детскую кроватку, там стул вместить некуда. По мне, очевидно - менять местами эти помещения.

...


Увеличивать кухню за счет жилого помещения незаконно. Увы.

да к сожалению. но можно не указывать перегородку и может прокатить как объединение

Т.е. любой вариант объединения кухни с гостиной незаконный? Просто сейчас мне кажется только ленивый не делает это

Вариант объединения двух помещений /полностью/, при наличии в квартире других жилых комнат абсолютно законен. А вот увеличение кухни за счет жилого помещения /его части, а не полностью/ незаконен. Это именно Увеличение Кухни за счет жилого. Можете смеяться, но дело обстоит именно так.

Прошу прощения, не совсем понял)) Объединение кухни с комнатой законно, но увеличение площади кухни за счет комнаты не законно? А где та грань в каком случае будет увеличение, а в каком объединение?

Объединение - это полностью вся квадратура обоих помещений превращается в одно помещение. Увеличение - это кухня и Часть площади жилого помещения. Хоть сантиметры, хоть метры, но Не Всё. Этим вы уменьшаете = ухудшаете жилое.

Что Вы имеете в виду?

1 есть организации которые законно могут согласовать несогласуемое 2 патрон v по каким то причинам предлагает сдвинуть почти все стены ( правда это не показатель 3. можно согласовать объединение кухни и гостиной а перегородку возвести позже

И, если новостройка в кирпиче и план БТИ еще не получен, то возможно вам вариант согласуют с небольшим штрафом. И сразу.

А при таком варианте мы после проведения ремонта в теории можем узаконить?

закон один а правила в регионах разные. можно просто расставить мебель . нервы сэкономите

Так понятно?


Да, вполне, спасибо!

Мы хотим иметь в квартире диван и ТВ зону напротив него, Я правильно понимаю, что в нашей планировке законных вариантов почти нет это реализовать, кроме того варианта, который я предложил? Или только отказываться от спальни и иметь раскладной диван и спать на нем?))


Ну, законные варианты, конечно, имеются и кроме вашего, включая и вариант с переносом зоны готовки в коридор. Но, ваш вариант ведь вам нравится и он вас устраивает? К чему же сомнения? Из своего - я бы не стала полностью объединять кухню с зоной отдыха. У нас тоже вариант кухни-гостиной, но между комнатой и кухней стена с проемом и дверями, и, уверяю вас, мы этими дверями часто пользуемся. Например, кто-то отдыхает и смотрит ТВ, а кому-то в кухне в это время необходимо пользоваться *громкой* бытовой техникой, или готовится что-то слишком *ароматное*... Тогда двери выручают. Ваш вариант неплохой, и если он вам подходит полностью, то делайте так.

1. Нам сейчас больше нравится вариант, предложенный leningor выше, но там как оказалось сложно с узакониванием
2. Сделать зону готовки в коридоре означает плохой слив воды либо делать принудительный слив, а он электрический, т.е. если отключат э/э, то кухней нельзя будет пользоваться я так понимаю. Хотя сама идея мне очень нравится, но в тоже время делать спальню под чужой кухней тоже вариант не очень хороший я думаю

В любом случаем спасибо!

Владимир, присоединение к кухне части жилой можно узаконить, например, обозначив кухню: а) как "кухня-ниша" в пределах границ кухни; б) как "кухня-столовая". С 2022г. в СП 54.13330.2022 «СНИП 31-01-2003 Здания жилые многоквартирные» (п.: 3.1.18; 5.11; 7.21) законодательно закреплено понятие = помещение "кухня-столовая". Требование - зона кухни должна быть размещена в нежилой части и иметь площадь не менее 6м2, обеденную зону можно размещать на территории жилой комнаты.
Для двоих детей комната 12м2 слишком мала. Предлагаю: детскую 20м2, кот. при желании можно поделить/зонировать на две: девочка/мальчик, спальня/учебно-игровая и пр; спальню 11м2 и кухню-гостиную 19,8м2.

вар. №2

Дарья, добрый день. Большое спасибо!

Только сообщите пожалуйста чем отличается вариант 1 от варианта 2?

Владимир, добрый вечер, рада была помочь:), отличие в расстановке кухонного гарнитура, размерах рабочей поверхности.

Дарья, добрый день.
Простенок около холодильника обязателен или это эстетичнее смотрится?
И еще как Вы думаете где в этой квартире может поставить стационарный компьютер для периодической работы?

Добрый!
Нет, не всегда.
Вариантов немного. Первый.

Второй.

Дарья большое спасибо за варианты, я сделал +/- Ваш вариант с одним изменением: дверь в спальню из коридора, т.к. в этом случае туда встает полноценный большой шкаф, иначе вещи хранить будет негде я думаю) правда пришлось пожертвовать гостиной немного. Также унитаз стоит в другом месте

Вопрос:
1. С Вашей точки зрения какой вариант входа в спальню предпочтительнее и почему?
2. Аналогично с расположением унитаза, мне с одной стороны нравится, как указали Вы, когда все мокрые зоны так скажем расположены в ряд, однако не будет ли проблемой, что унитаз идет перед ванной в системе слива и не далековато ли он от сливной трубы в этом случае?

В таком санузле можно получить увечья - нет никакой эргономики.
У клепальщицы не лучше. Соседство раковины и унитаза - дичь запредельная.

По Вашему мнению как лучше сделать?

Это вопрос не локальный, только санузел, это вопрос комплексный - общая планировка квартиры. Ваши варианты, варианты Д. не выдерживают никакой критики - устанешь перечислять недостатки. Предложил свой вариант, вы его обошли молчанием. И совершенно напрасно.
Если вернуться к санузлу: есть еще один серьезный минус, кроме уже сказанного, вход располагается непосредственно в грязной зоне - вся земля будет в санузле.

Вход в санузел из грязной зоны; гипертрофированная прихожая в ущерб полезной/жилой площади; узкий проход в детской с "огибанием" кровати, рабочее место в темном углу...
Такая планировка никуда не годится.

Спасибо за замечания, по Вашей планировке к сожелению видим для себя следующие минусы:
1. Отсутствие полноценной ванной (на планировке душ), нам нужна именно ванная 170см
2. Некуда поставить стиральную/сушильную машину
3. Узкая детская 2,5 метров
4. Отсутствие прямого вида на ТВ с дивана в кухне гостиной (очень бы хотелось при площади квартиры иметь возможность смотреть фильмы удобно иногда))
5. Отсутствие рабочего места для установки стационарного ПК (для работы иногда)

В вашем посте ничего не говорилось про ванну, про сушильную машину и про ПК.
Вы не понимаете, что запросы должны соответствовать возможностям, которые есть в этой квартире.
Но я внесу коррективы, если это возможно. -)

Полный функционал, соответствующий вашим запросам.
Детская, 20,3 м2, шириной 2500 (минимально допустимо - 2250) - свободный подход ко всем предметам, удобное рабочее место для двоих, шведская стенка...

Спасибо!
А что думаете про перенос кухонной зоны в коридор? Таким образом планировка гораздо лучше в моем понимании, не будет бесполезного коридора) я так понимаю без насоса никак, но в целом вариант был бы рабочим?

Об этом уже говорил, это безумная идея.
В моих вариантах нет "бесполезного коридора", есть прихожая и только.

Вместо коридоры в детской комнате сейчас тоже место просто так по идее пустует напротив шкафа(

Но это место - проход в комнату, подход к шкафу, оно необходимо и является полезной/жилой площадью, в отличие от коридора. Улавливаете разницу?

Ну очевидно так лучше конечно, я не спорю)
Еще вопрос: насколько реально согласовать предложенный вариант переноса стены, из-за чего площадь кухни фактически увеличивается?

Могу по этому вопросу проконсультироваться.
В каком городе квартира?

Что вам мешает подать такой проект на согласование? Вот тогда и узнаете ответ. И, известно что *всякая метла по-своему метет*... Нам в свое время даже на полметра не согласовали, а вам может повезет, вдруг коробкой конфет обойдетесь...

Нижний Новгород

Мы пока не очень понимаем с какой планировкой лучше идти и стоит ли идти ДО или лучше ПОСЛЕ

Вариант с сохранением площади кухни.

Добрый вечер, удалось проконсультироваться по нашему вопросу расширения кухни?

Владимир, вы невнимательны, в приведенном выше варианте №1 в спальне предусмотрен шкаф 1500*600 + доп. скрытый отдел для несезонной одежды на 500, также под несезон можно организовать шкаф в нише гостиной (вместо раб. стола в варианте №2), также часть одежды, опять же несезонной, можно хранить в шкафу в прихожей, его длина может варьироваться от 2 до 3 метров.
Для установки шкафа напротив кровати нужно увеличивать длину спальни до мин. 3500, т.о. чтобы м/у кроватью 2100*1700 и шкафом стандартной глубины= 600 оставалось комфортное расстояние = 800, соответственно, уменьшать и так небольшую площадь кухни-гостиной + уменьшать ширину детской.
И еще один момент, дет.кроватка в спальне - это временное неудобство:)), max 2-2,5 года, вполне логично в перспективе (+/- для комфортной работы/ отдыха) поставить на ее место компьютерный стол, тем самым разгрузить кухню-гостиную.
Варианты в масштабе ниже (у вас он, кажется, не совсем соблюден) с увеличением площади спальни и без.
По вопросам:
1. Непроходные комната, кухня однозначно лучше проходных.
2. Существует масса нюансов, без доп. инфо заочно не всякий сантехник проконсультировать возьмется. Логично, от стояка идут две ветки: труба d110 к унитазу и d50 к ванне/раковине, у каждой свой уклон, для соединения труб разного диаметра существуют косые, Y-образные тройники, создающие ответвления под углом, отличным от 90 гр., + высота гидрозатвора сифона ванны д.б. не менее 55 мм.
При установке унитаза по стене с вент.шахтой придется огибать угол, т.е., скорее всего, имеющуюся гофру менять на тройник и трубу выкладывать под углом в 90 гр. (2-3 отвода под >45), т.е. не факт, что унитаз вплотную к стене можно будет установить, ну и участок этой трубы тоже как-то эстетично нужно будет прятать.

.

Блеф клепальщика из деревни...
Когда соседство унитаза и раковины стало запредельной дичью? Это незыблемая классика... А дичь - поставить узкий (= 50 см) компьютерный стол в спальне! в проходе между кроватью и шкафом с расстоянием в метр... Невозможно комфортно ни шкафом пользоваться - стул постоянная помеха, ни ночью в танчики поиграть)), малыш, думаю, тоже навряд ли оценит... оригинальность подобного решения:))
Вход в санузел из коридора, и не на обозреваемый угол вентшахты + унитаз, как в вашем варианте (весело будет строителям протискивать ванну в этот проем:))
В квартирах с подобной «проходной» планировкой при входе ставят обувницу + настенную вешалку, в т.ч. для сушки одежды во время дождя/снега. Какая земля? При входе обувь снимают + спец ковриками давно научились пользоваться. То, что в вашем варианте семья будет лицезреть входную дверь + эту самую «грязную зону», ежедневно принимая пищу, вас не особо смущает?
Площадь прихожей = 8,5–9 м2 - полезная, т.к. в ней не в ущерб хранению в детской размещен большой шкаф под верхнюю одежду, +/- возможность использования его части под хоз. инвентарь, быт. технику. Помнится, не так давно вы утверждали, что шкаф на 16–20 вешалок под верхнюю одежду на 4-х мал. Посчитайте, полезная глубина, позволяющая разместить стандартную вешалку с верх. одеждой вашего шкафа неправильной формы, равна 1 метру. Ну и лично я (возможно, как и Владимир А.) в ожидании ссылок, где продают подобные + ссылку на диван можно (размеры указала, кстати, какая должна быть высота его сиденья для комфортного приема пищи за столом стандартной высоты?).
По детской. Вы уменьшили полезную длину прихожей, т. е. уменьшили длину полезного шкафа! для всех членов семьи ради увеличения проходной части детской, кот. может быть использована только под хранение - т.е. шкаф длиной в 3,5 м - нерациональное использование площади!
Да, лучше «огибание» кровати, нежели кровать вплотную к радиатору и к внешней, зачастую холодной стене.
Если бы у вас были дети, вы бы точно знали, что единая столешница, опять же, вплотную к радиатору (игнорируете их наличие?) - это зло, отсутствие личных границ = постоянные конфликты...
Комната с тремя окнами на две стороны навряд ли может быть темной, искл. выход на север, но в таком случае, да и в принципе, большинство современных (загруженных:)) детей делают уроки при искусственном освещении.

Ого, вот это истерика! Клепальщица разошлась ни на шутку... -))

Дарья, спасибо за развёрнутый комментарий.
1. В части с/у: расстояние под ванной может позволить пустить там трубу 110? Мне казалось ванны обычно очень близко к полу.
2. Где в Вашем варианте возможно разместить полотенцесушитель? В последнем варианте на стене с торца ванны он указан? Если да, то можно ли так электрический сушитель вешать в мокрой фактически зоне?
3. Существуют какие то дизайнерские приёмы разграничения грязной зоны в подобном коридоре, т.к. вход уж очень близко к входу в квартиру?
4. Что думаете насчёт варианта размещения сантехники в с/у, как на приложенном фото? (шкафчики не рисовал пока)

Владимир, рада помочь! Со всеми вопросами по размещению сантехприборов необходимо обращаться к профи - сантехнику с привязкой по месту.
1. Высота ножек ванны м.б. разная, труба 100 с уклоном в 1,5см/м + учетом чернового пола точно пройдет.
2. Не вижу проблем для размещения эл. полотенцесушителя у ванны. Можно разместить его рядом с раковиной, как было предложено в первоначальном варианте.
3. "Существуют какие то дизайнерские приёмы разграничения грязной зоны в подобном коридоре, т.к. вход уж очень близко к входу в квартиру?" Близость входа в су - это данность, ничего вы с этим не сделаете, единственный бредовый вариант - перенос входа в су из кухни, вам это не нужно))). Зачем дизайнерские, здесь важны практичные, их я уже перечислила - обувница при входе.
4. Думаю, он самый простой, доступный в реализации (в т.ч. и согласно плана застройщика) но мне не нравится унитаз напротив дв. проема, просматриваемые из прихожей/ коридора.

ipeoun, коробкой оригинального дубайского шоколада)).
Ну, а если серьезно, на законодательном уровне все четко прописано, никакие местные органы не могут отменить федеральный закон, все красные линии на плане должны быть с обоснованием, в противном случае согласование через суд, в некоторых спорных моментах бывает даже проще.
Владимир, если есть большое желание увеличить кухню до «кухня-столовая» или же перенести её в коридор, то в любом случае вам для согласования понадобиться тех. проект, кот. без помощи профи сделать сложно, поэтому рекомендую обратиться в проектную организацию с допуском СРО или к лицензированному дизайнеру-проектировщику в Нижнем, лучше проверенным, с хорошей репутацией. Подавать заявку и документы на согласование перепланировки можно через «Госуслуги», процесс более чем удобен и относительно быстр.
На обещанную консультацию от Патрона я бы не рассчитывала. Он в действующих СНиПах путается, использует недостоверные источники из интернета, периодически выкладывая их в качестве аргументов «на дурака», попросту блефует. Предложение консультации - чистой воды наживка с его стороны. Последний вариант - отказ от увеличения кухни - тому подтверждение. Дальше пойдут манипуляции, оскорбления, убеждения, что все иные варианты - не варианты, как вы можете заметить, в диалогах прослеживается, «купил неподходящую квартиру, без его дизайн-проекта угробите"..., а по итогу ваш вариант расстановки су, где ранее как казалось "можно получить увечья - нет никакой эргономики", норм, пользует)).

Наглая ложь аферистки-клепальщицы.

Жду ответов.

Дарья, ход мыслей нам Ваш нравится, а с Вами возможно как-то не в рамках данного форума вести диалог?
Может ссылка на Вашу страницу есть или еще что то?

Диалог можно вести с любым пользователем лично -- нажмите на Ник, зайдёте на личную страницу пользователя, ниже фото сообщения /конвертик/.

Если так? Коридор уже не кажется большим и бесполезным...?

На будущее: не пачкайте и не трогайте мои планировки!

не загрузился, повтор

На будущее: взаимно, мимо идите!

Ожидаемый ответ.
С учетом всего, единственно грамотная, согласуемая перепланировка, это мой вариант "В".
Хотите вестись на увещевания аферистки - ваше дело.
По всему видно, квартиру вы уничтожите, как пить дать.

Скриншот вопроса можете выложить?
Согласованный вариант увеличения кухни №2 за счет части жилой №1. Кухня-столовая - помещ. №7 с выделенной кухонной зоной.

.

можно спальню гостиную без перепланировки


...


как то так


Радикальный, интересный вариант)

столько разговоров о переносе кухонного фронта в коридор а кто нибудь объяснит преимущества такого решения? проходная кухня  не очень хорошо. если кухня ниша закрытая то получается проходная бывшая кухня и гостиная.В чем выгода?


Выгода - больше жилого пространства, возможность получить, например: две детские по 10м2, спальню 13,5м2 и гостиную в 15м2

Ну и, можно пожертвовать кусочком спальни 13,5, чтобы сделать вход именно в гостиную, перекрыв проход через коридор - чтобы кухня превратилась в кухню-нишу. И суть, да, именно в более выгодных размерах комнат-спален.

сделать кухню нишу и получить 39 кв.м не жилой площади (правда по документам) а в реальности потерять 11 кв. м площади для хранения и еще спать между кухнями соседей.   сомнительное мероприятие А вообще то понятие об удобстве у каждого свое


Какая у вас странная математика. Жилая 48,5м2, кухня 6м2, прихожая 4,3м2, су 5м2.
Где находятся эти 11кв.м. для хранения?
Ночью на кухнях (соседей) порой тише, чем в спальнях...

...

Мне не понятно, где в походной прихожей = 11,97м2 можно "в реальности потерять 11кв.м. площади под хранения" (т.е. 0,97 - остаток на коридор?), но я точно могу сказать, что при возможном размещении кухни в коридоре 11,97 + су 5,21 =17,18м2 останутся нежилыми, а 13,73 + 15,47 + 3,52 + 15,61 = 48,33 - могут использоваться под жилое пространство.

Прошу оценить такой вариант, пытались попробовать еще сделать вариант как можно бесполезный коридор использовать, и немного увеличить гостиную, правда бесполезный кусок коридора теперь посреди квартиры все равно остался, но его бесполезная площадь сократилась немного.


Для меня балкон все же уместнее в спальне родителей нежели в детской.

Но если идти по этому пути, то сделала бы вход в спальню через маленький коридорчик между несущей колонной и детской. Тогда кусок, оставшийся от прихожей, можно разбить на два и превратить в гардеробную со входом из спальни и (например) на кабинет-нишу из гостиной.

Ваш ответ

Чтобы оставить коментарий зарегистрируйтесь или на сайте