Квартира в Сестрорецке с небольшой перепланировкой в прихожей.
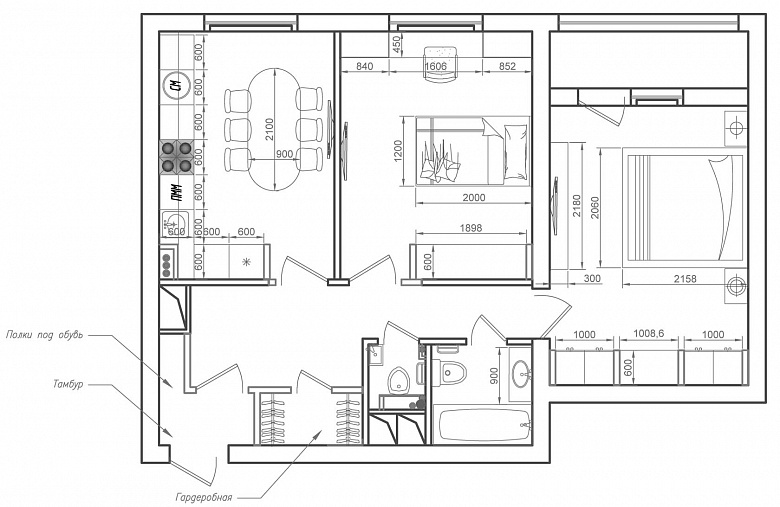
В квартире была хорошая планировка, которую решено было оставить без изменения. Исключение составила прихожая, в которой был организован тамбур. Таким образом входя в квартиру, оставить обувь можно именно там. Так же это решение помогло организовать гардеробную и сохранить при этом правильную форму помещения. Чертеж прилагается.











описание проекта "лаконичненькое")
Что плохо в таких публикациях - никогда не понятно, что есть выбор клиента, а что «усилия» оформителя...
Вот этот «шедевральный» стол на кухне и достаточно массивные стулья для такого помещения - это что ?
ЭТА столовая группа ЭТОЙ кухне абсолютно чужеродна. Даже странно, что вы, дизайнер, этого не видите. Возможно, в просторной столовой при надлежащем декоре она бы прошла и даже стол был бы уместен. Здесь же - твердое нет.
Уютная спальня и детская 👍
А сколько человек в семье и действительно, с чем связано наличие такого мощного стола на кухне?
Очень уютная спальня получилась. У всех вопросы к столу наверно из-за ножки, кажется, что она тяжелая и стол не сдвинуть с места.