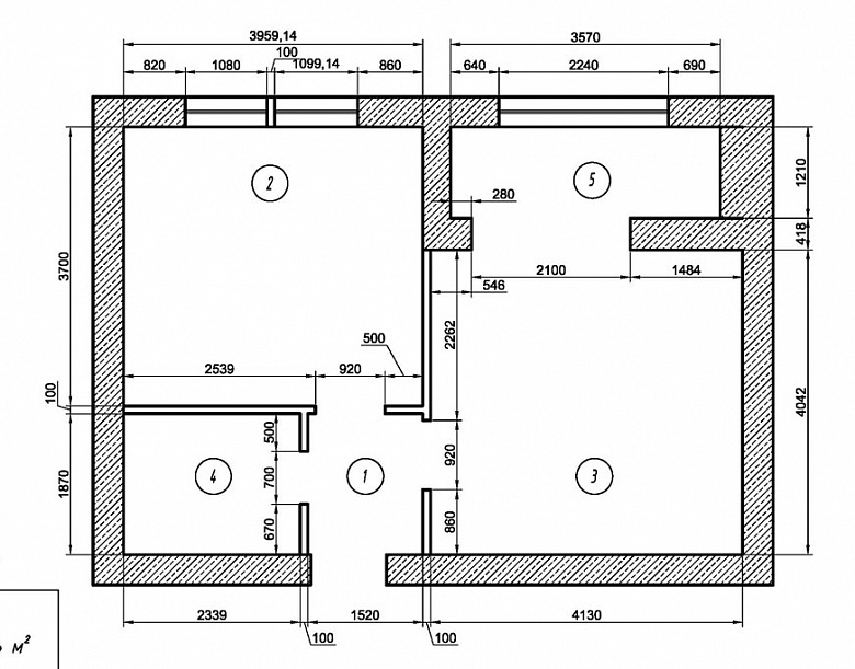
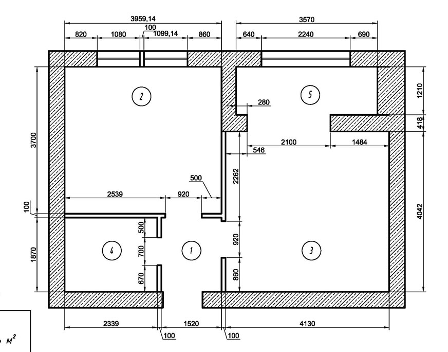
В однокомнатной квартире необходимо было сделать две полноценные комнаты: спальню с кроватью и кухню-гостиную, где можно было бы принимать гостей.
В однокомнатной квартире необходимо было сделать две полноценные комнаты: спальню с кроватью и кухню-гостиную, где можно было бы принимать гостей. Остро стоял вопрос о размещении стиральной машины и создания места для хранения бытовой химии и пр. в с/у.
Из сложностей в проектировании - трубы в с/у, которые расположились с размахом: 450 мм по глубине и 800 мм по ширине. Из-за такой особенности пришлось сдвинуть дверной проём максимально к противоположной стене, для того, что бы унитаз не мешал при входе.
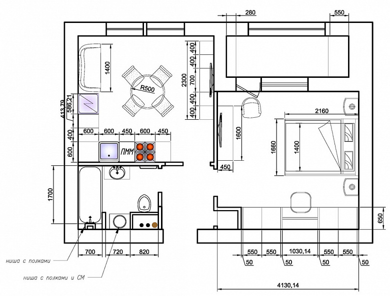
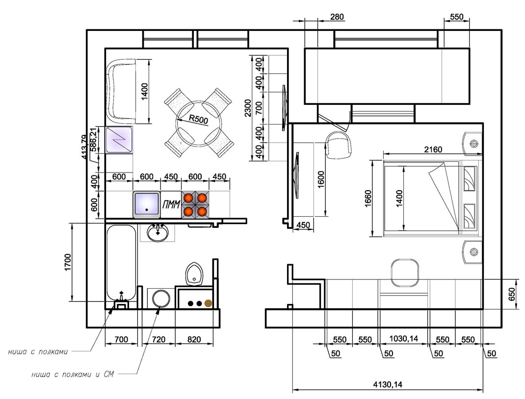
Так же был смещён дверной проем на кухне к правой стене, что бы максимально использовать освободившиеся место под кухню. В прихожей демонтарованна часть стены, для шкафа под верхнюю одежду. На лоджии установленны шкаф глубиной 600 мм и стеллаж, глубиной 300 мм, в центре которого расположилась гладильная доска и предусмотренны розетки.









Все хорошо, кроме 2х моментов:
1. гладилка на балконе (утром по зиме то "приятно" выскочить из тёплой кроватки погладить рубашку перед работой)
2. расположение кухонной техники (справа режешь, слева, да еще через раковину, кидаешь? - подумайте еще, пока не реализовали...)
Рабочий путь пищи на кухне такой: Достал из холодильника продукт, положил рядом на поверхность, потому что еще нужно пару достать, потом тут же первично обработал, что-то развернул, разрезал упаковку, лишнее выкинул в мусорку ( она рядом) и тут же моешь, значит и раковина рядом. Потом из раковины чистое на следующую поверхность, чистую, но рядом с раковиной, чтобы мыть и руки и приборы и посуду и продукты, тут делаешь полуфабрикат, далее плита, куда отправляешь полуфабрикат, готовое блюдо сервируешь на следующей поверхности для сервировки и готовых блюд. Там же для семьи стоят кувшины с водой, печенье, фрукты.
Не могу пройти мимо такого диалога. Есть разделочные доски, которые поверх мойки ставят. Особенно удобно, когда измельчитель есть ;) От меня + за то, что кухня-гостиная в равной степени и то и другое
Спасибо большое за информацию о разделочных досках, которые поверх мойки ставят! Я не знала 😳. И за "+" спасибо!
а такую цветовую гамму заказчик диктовал?
Добрый день! Цветовую гамму всегда выбирает заказчик. Ему жить потом в этой квартире.
Тяжёлый стиль на маленькой площади.